HLZ – 81

Holzhaus Österreich Preis – Modernes Design
HLZ - 81

from € 134.800,-

Without foundation plate

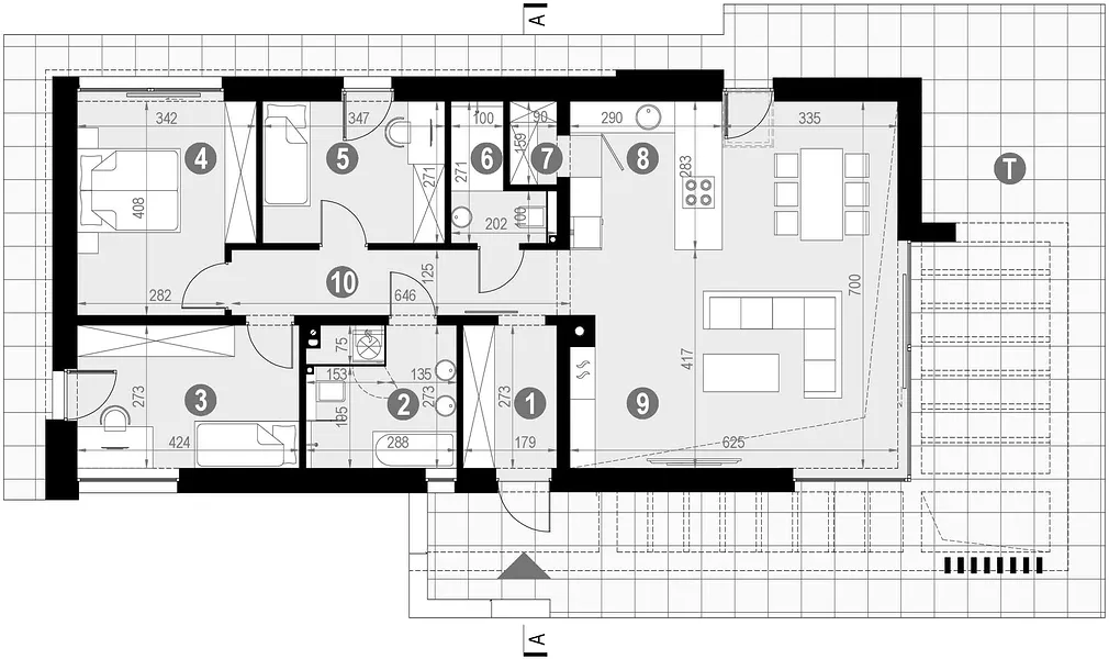
Total living area: 103,37 m²
Built area 103,37 m²
Net floor area EC 129,42 m²
Terrace 85,54 m²
Total living area: 103.37 m²
1. Entry 4.89 m²
2. Main bathroom 7.69 m²
3. Bedroom 11.58 m²
4. Bedroom 13.13 m²
5. Bedroom 9.40 m²
6. Service bathroom 3.71 m²
7. Pantry 1.43 m²
8. Kitchen 8.21 m²
9. Living room 35.25 m²
10. Hallway 8.08 m²
What you get

Modern aesthetics, pure functionality

Our homes set new standards: With modern design, clean lines, and generous glass surfaces, we create light-filled spaces that make your connection with nature tangible.

Highly insulated exterior walls (U-value ≈ 0.116 W/m²K), triple-glazed windows, and an air-to-water heat pump result in extremely low energy consumption—noticeably lower heating costs whatever the weather. Underfloor heating provides pleasant warmth from below, smart home technology provides control at the touch of a button, and the high-quality finish with real parquet flooring, a fireplace, and custom work guarantee quality you can see and feel.

Faster construction times, transparent pricing, and significant energy savings make the difference—invest in comfort and sustainability, today and for the future.

Price option

From structure to turnkey

134.800 €
Basic (Without foundation plate)
  • Exterior wall "Efficient 40 Plus"
  • Facade with exterior plaster, including scaffolding
  • High-quality entrance door
  • Windows and patio doors including aluminum shutters
  • Exterior and interior window sills
  • Roof structures
  • Roof insulation
  • Roof covering
  • Galvanized roof drainage
  • Interfloor ceiling
  • Installation of fireproof plasterboard on ground floor ceiling
  • Installation of fireproof plasterboard on sloping roofs/upper floor
  • Electrical installation including electrical distribution board and electrical certification
  • Preparation for plumbing installation
  • Foundation plate NOT included

248.450 €
Premium (Foundation plate included)
  • Exterior wall "Efficient 40 Plus"
  • Facade with exterior plaster, including scaffolding
  • High-quality entrance door
  • Windows and patio doors including aluminum shutters
  • Exterior and interior window sills
  • Roof structures
  • Roof insulation
  • Roof covering
  • Galvanized roof drainage
  • Interfloor ceiling
  • Installation of fireproof plasterboard on ground floor ceiling
  • Installation of fireproof plasterboard on sloping roofs/upper floor
  • Electrical installation including electrical distribution board and electrical certification
  • Preparation for plumbing installation
  • Smart Home System
  • Air/water/heat pump
  • Chimney including chimney head
  • Underfloor Heating System
  • Concrete screed including thermal and impact sound insulation
  • Foundation plate included
Best Value

336.500 €
Turnkey (Foundation plate included)
  • Exterior wall "Efficient 40 Plus"
  • Facade with exterior plaster, including scaffolding
  • High-quality entrance door
  • Windows and patio doors including aluminum shutters
  • Exterior and interior window sills
  • Roof structures
  • Roof insulation
  • Roof covering
  • Galvanized roof drainage
  • Interfloor ceiling
  • Installation of fireproof plasterboard on ground floor ceiling
  • Installation of fireproof plasterboard on sloping roofs/upper floor
  • Electrical installation including electrical distribution board and electrical certification
  • Preparation for plumbing installation
  • Smart Home System
  • Air/water/heat pump
  • Chimney including chimney head
  • Underfloor Heating System
  • Concrete screed including thermal and impact sound insulation
  • Tiles and sanitary fittings in bathrooms and toilets
  • Filling and painting
  • Real wood parquet and flooring
  • Interior doors
  • Foundation plate included

Quick Contact Information

Feel Free to Contact Us