HLZ – 101

HLZ - 101

from € 158.900,-

Without foundation plate

Total living area: 86,03 m²
Built area
78,20 m²
Net floor area
86,03 m²
Terrace
27,41 m²

Ground floor plan

1. Entry 3,64 m²
2. Hallway 1,68m²
3. Pantry 1,20 m²
4. Living room 29,67 m²
5. Technical room 5,16 m²
6. Bathroom 3,50 m²
7. Wardrobe 3,07 m²
Terrace 27,41 m²

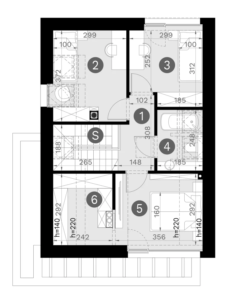
Floor plan

1. Hallway 4,01 m²
2. Bed room 9.21 m²
3. Bed room 7,17 m²
4. Bathroom 3,42 m²
5. Bed room 8,99 m²
6. Dressing room 5,51 m²
What you get

Modern aesthetics, pure functionality

Our homes set new standards: With modern design, clean lines, and generous glass surfaces, we create light-filled spaces that make your connection with nature tangible.

Highly insulated exterior walls (U-value ≈ 0.116 W/m²K), triple-glazed windows, and an air-to-water heat pump result in extremely low energy consumption—noticeably lower heating costs whatever the weather. Underfloor heating provides pleasant warmth from below, smart home technology provides control at the touch of a button, and the high-quality finish with real parquet flooring, a fireplace, and custom work guarantee quality you can see and feel.

Faster construction times, transparent pricing, and significant energy savings make the difference—invest in comfort and sustainability, today and for the future.

Price option

From structure to turnkey

158.900 €
Basic (Without foundation plate)
  • Exterior wall "Efficient 40 Plus"
  • Facade with exterior plaster, including scaffolding
  • High-quality entrance door
  • Windows and patio doors including aluminum shutters
  • Exterior and interior window sills
  • Roof structures
  • Roof insulation
  • Roof covering
  • Galvanized roof drainage
  • Solid wood staircase
  • Interfloor ceiling
  • Installation of fireproof plasterboard on ground floor ceiling
  • Installation of fireproof plasterboard on sloping roofs/upper floor
  • Electrical installation including electrical distribution board and electrical certification
  • Preparation for plumbing installation
  • Foundation plate NOT included

219.200 €
Premium (Foundation plate included)
  • Exterior wall "Efficient 40 Plus"
  • Facade with exterior plaster, including scaffolding
  • High-quality entrance door
  • Windows and patio doors including aluminum shutters
  • Exterior and interior window sills
  • Roof structures
  • Roof insulation
  • Roof covering
  • Galvanized roof drainage
  • Solid wood staircase
  • Interfloor ceiling
  • Installation of fireproof plasterboard on ground floor ceiling
  • Installation of fireproof plasterboard on sloping roofs/upper floor
  • Electrical installation including electrical distribution board and electrical certification
  • Preparation for plumbing installation
  • Smart Home System
  • Air/water/heat pump
  • Chimney including chimney head
  • Underfloor Heating System
  • Concrete screed including thermal and impact sound insulation
  • Foundation plate included
Best Value

288.900 €
Turnkey (Foundation plate included)
  • Exterior wall "Efficient 40 Plus"
  • Facade with exterior plaster, including scaffolding
  • High-quality entrance door
  • Windows and patio doors including aluminum shutters
  • Exterior and interior window sills
  • Roof structures
  • Roof insulation
  • Roof covering
  • Galvanized roof drainage
  • Solid wood staircase
  • Interfloor ceiling
  • Installation of fireproof plasterboard on ground floor ceiling
  • Installation of fireproof plasterboard on sloping roofs/upper floor
  • Electrical installation including electrical distribution board and electrical certification
  • Preparation for plumbing installation
  • Smart Home System
  • Air/water/heat pump
  • Chimney including chimney head
  • Underfloor Heating System
  • Concrete screed including thermal and impact sound insulation
  • Tiles and sanitary fittings in bathrooms and toilets
  • Filling and painting
  • Real wood parquet and flooring
  • Interior doors
  • Foundation plate included
Best Value

Quick Contact Information

Feel Free to Contact Us